14 Freestyle u Jablonce

Freestyle u Jablonce
Typové drevostavby na kľúč
Architekti
Úžitková plocha
109 m2
Realizácie
2022
Fotograf
Lina Németh
Realizační firma
Domesi s.r.o.

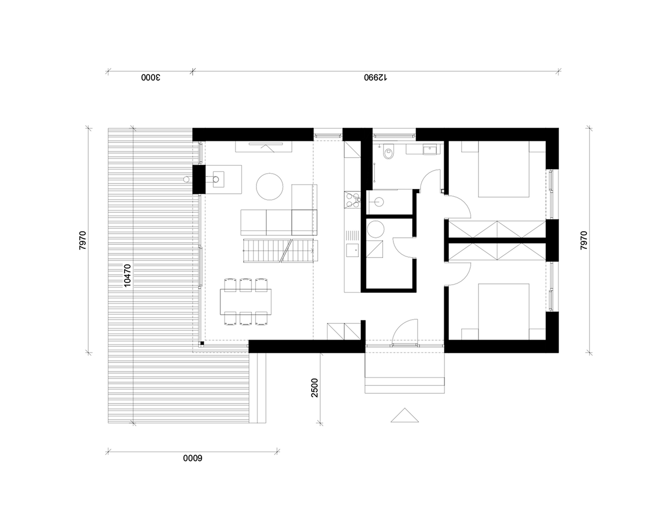
Typovou dřevostavbu Freestyle stavíme už více jak 13 let. Přestože jde o typové řešení, každý dům je originál, přizpůsobený potřebám a vkusu majitelů.

Rohové okno

Freestyle u Jablonce má oproti standardu typového domu rohové okno směrující ke krásným výhledům do okolní jizerskohorské krajiny a na terasu, která jej obepíná. Vzniklo na přání majitelů, s cílem umožnit odpolednímu západnímu slunci prosvětlit co nejvíce obývací pokoj.

Vhodné umístění

Dřevostavbu jsme umístili do střední části mírně svažitého pozemku. Příjezdová cesta vede nad domem – podél hustého lesa. U vjezdu na pozemek se nachází kryté parkovací stání a uzavíratelný sklad. K domu pak vede světlým pískem vysypaná pěšina. Od budovy směrem dolů se rozkládá širá krajina jizerskohorských luk a kopců.

S klienty jsem byl v kontaktu již delší dobu a věděl jsem o tom, že hledají vhodné místo pro rekreaci a odpočinek své velké rodiny. Na začátku jsme si definovali stavební program, potřeby a očekávání. Na tuto definici pak perfektně seděl náš typový dům Freestyle, který jsme upravili a přizpůsobili místu a jejich potřebám.

Michal Kotlas
/
Atmosféru obývacího pokoje dotvářejí krbová kamna.
/
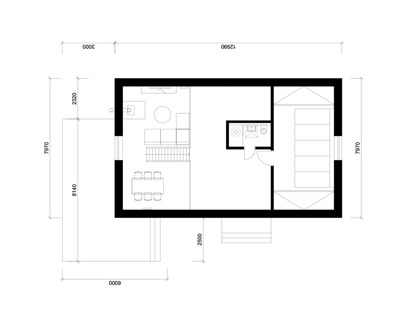
Na horní galerii se nachází kromě menší pracovny a relaxačního koutku samostatná ložnice a koupelna se sprchovým koutem a toaletou. Ložnice má na míru zbudované „ležení“ v podobě široké postele, kde se vyspí až 5 lidí.

Pohodlí na volné dny

V hlavní obývací místnosti získala větší prostor, oproti standardu, kuchyňská linka, najdeme zde také pohodlné obývací sezení u krbových kamen a dostatečně velký stůl, kam se vejde celá rodina. Vnitřní stěny jsou z pohledového dřeva v kombinaci s bílou výmalbou. Na podlaze v obývací části je dřevěná dubová podlaha (odstín bělený dub).

Fasáda je dřevěná modřínová bez povrchové úpravy, takže postupem času získává přirozenou patinu. Okna jsou plastová s trojsklem – barva antracit.
/
V jednotném stylu k domu jsme navrhli také umístění dalších objektů - carport, sklad a saunu, které majitelé domu realizovali již samostatně.
15
Ďalší projekt

Zlín

Posuň
ma