24 Liptov

Dřevostavba Liptov
Rodinné a víkendové domy
Úžitková plocha
130 m2
Realizácie
2015/2016
Fotograf
Milan Hutera
Dodavatel
Domesi, s.r.o.

Moderní nízkoenergetickou dřevostavbu pro čtyřčlennou rodinu jsme postavili na mírně svažitém pozemku s krásným výhledem na Tatry.

Boční Pohled

Ověřená forma

Dům má klasický tvar a sedlovou střechu s vikýřem – tedy drží se historicky ověřené formy, která poskytuje tu nejlepší možnou ochranu před drsným podhorským počasím. Zároveň tak stavba harmonicky zapadá do okolní zástavby.

"Přáním investora, vášnivého skialpinisty, bylo vidět z domu na Baranec - vrchol Západních Tater."

Václav Zahradníček, Architekt
První patro
/
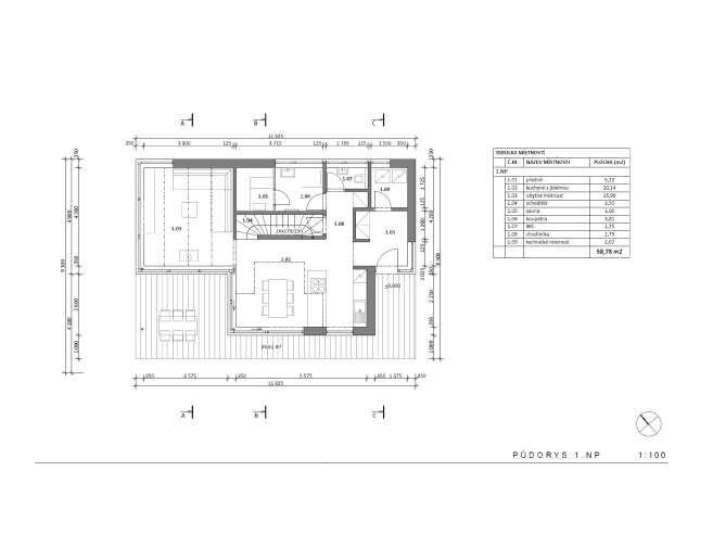
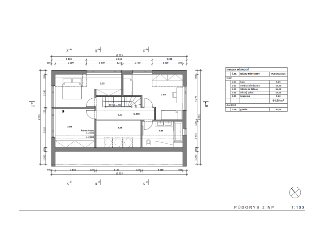
Denní pobytová část se nachází v přízemí, noční klidová zóna je na poschodí
Pohled Do Kuchyně
Průhled Spodním Patrem
/
Kuchyňskou část od jídelny odděluje linka s vestavěnou varnou deskou, barovým sezením pro dva a úložným prostorem ze strany jídelny

Obdélníkový půdorys

Základním půdorysným tvarem domu je obdélník. Na něj jsou usazena dvě racionálně a důmyslně koncipovaná nadzemní podlaží. Kuchyň prosvětlují boční dveře se vstupem na terasu. V horním patře je větší dětský pokoj, na atraktivní výhledové straně ložnice a vedle ní meditační místnost. Zútulňujícím prvkem je pohledové dřevo na stěnách interiéru a přiznané dřevěné trámy na stropech.

Čelní Pohled
Moderní dřevostavba je citlivě začleněna mezi okolní tradiční chalupy. Střecha je sedlová, plechová. Fasáda je z neošetřených překládaných modřínových prken.

Zimní zahrada

Dispozice domu vychází z logického členění prostoru kolem středové galerie. V přízemí domu je přidanou hodnotou prostorná terasa, kterou se majitelé nakonec rozhodli nechat zasklít a vytvořit tak zimní zahradu. Mohou zde relaxovat i když jim počasí venku příliš nepřeje a neobtěžuje je ani chladnější vítr, kterému se v dané lokalitě prakticky nejde vyhnout. Sluneční energie se zde příjemně akumuluje a pomáhá tak k ohřevu i ostatním vnitřním prostorám.

Pohled Na Zimní Zahradu
25
Ďalší projekt

Landscape festival

Posuň
ma