1 Modré hory

Rodinné a víkendové domy
Úžitková plocha
303 m2
Realizácie
2023
Projektanti
Fotograf
Boys Play Nice
Realizační firma
Domesi s.r.o.

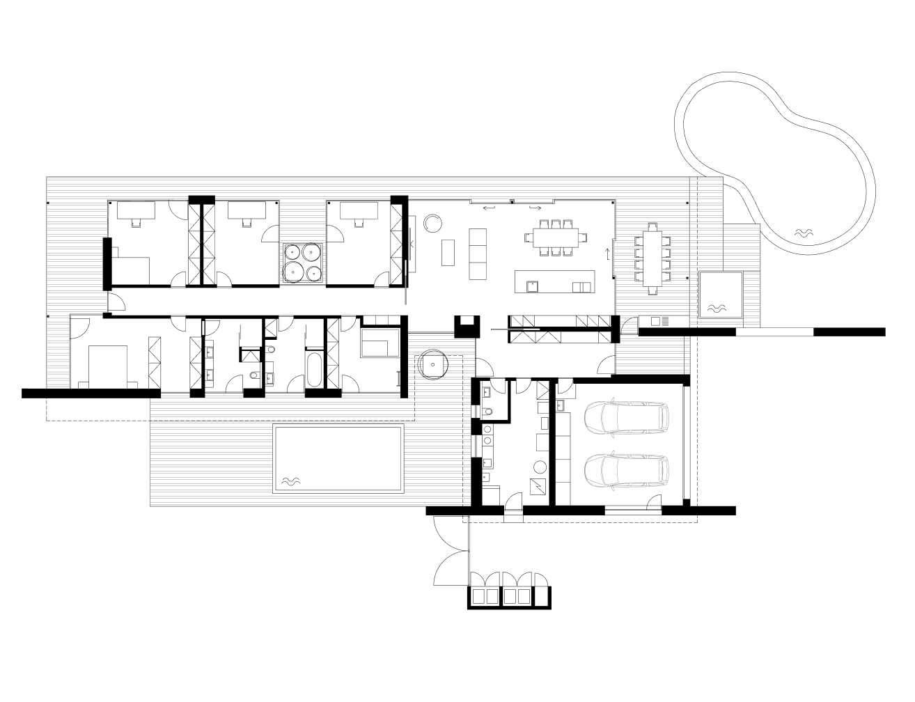
Propojení vnitřního prostoru s okolní přírodou definuje přízemní moderní dřevostavbu, postavenou ve vinařské oblasti. 

/
Dům s plochou, zelení porostlou střechou, s množstvím prosklených ploch, teras a atrií se stromy a rostlinami, citlivě zapadá do okolní krajiny.

Propojení se zahradou

Dřevostavba, umístěná ve stávající zástavbě rodinných domů na okraji obce je obklopená velkým pozemkem, který se nachází v bezprostřední blízkosti vinic a meruňkových sadů. Hlavní obytný prostor s velkou kuchyní, jídelnou a posezením je maximálně otevřený směrem ven. Tento efekt ještě umocňují dřevěné akustické panely (NOVATOP) na stropě, které „přechází“ přes bezrámová okna z interiéru, do podhledu střechy v exteriéru. Okna (Janošík) jsou vedena od podlahy ke stropu se skrytými rámy, aby nic nerušilo výhled do okolí.

„Chtěli jsme, aby zeleň zvenku prostoupila dovnitř do domu, což se povedlo díky proskleným stěnám a atriím, které přes terasy propojují vnitřní prostor se zahradou. V jednom z atrií jsme nechali zasadit strom, který při slunečním svitu vytváří zajímavou hru světla a stínu a zároveň tvoří určitou clonu obývací místnosti od exteriéru,“

Michal Kotlas, Architekt
/
Všechny obytné místnosti domu obepínají terasy.

Nízkoenergetický provoz

Dům je nízkoenergetickou dřevostavbou. Má betonové monolitické základy, obvodové stěny tvoří masivní dřevěné CLT panely (Novatop), které jsou v některých částech interiéru zanechány pohledové. Konstrukce je zateplena minerální vatou. Větrání je zajištěno rekuperační jednotkou s možností úpravy vlhkosti. Podlahové vytápění a ohřev vody řeší vnitřní tepelné čerpadlo systému vzduch/voda. Plochá střecha je osázena extenzivní zelení. Kromě estetické funkce má zeleň svůj přínos také v letních teplých dnech, kdy zlepšuje celkové klima uvnitř domu. Na střeše se také nachází fotovoltaické panely.

Fasáda domu je řešena kombinací monolitických betonových stěn a dřevěných modřínových hranolů s mezerou. Atika ploché střechy je obložena fasádními obkladovými deskami z kortenového plechu. /
Mezi dvěma místnostmi, které slouží jako pracovny, je umístěný propojovací prvek – malé atrium s možností posezení. Díky tomu je zajištěno přirozené světlo v chodbě, vedoucí do pokojů a koupelny.
/
Od okolí je dlážděná plocha vchodové části oddělena betonovými stěnami s průhledy do soukromé části zahrady.
Posuň
ma