37 ZŠ Holešovice

Vizualizace ZŠ Holešovice
Komerčné a verejné stavby
Architekti
Michael Šilar
Michael Šilar
+ 1
Úžitková plocha
Realizácie
2022
Vizualizace
Studiosme
Zadavatel
Mč Praha 7

Nespornou výhodou našeho návrhu - školy ze dřeva - je výrazně nižší uhlíková stopa a zdravé vnitřní prostředí. Budova měla sloužit také jako nástroj edukace žáků a celé komunity v udržitelném stavebnictví.

Vizualizace ZŠ Holešovice

Výhody dřeva

Vnitřní atrium je v návrhu oproti keramickému obkladu venkovní fasády kontrastně obloženo dřevem. Využíváme tak všech výhod, které nám dřevo nabízí - od akustiky, přes psychologický efekt, až po vjemy čichové. Důležitým prvkem našeho návrhu je také práce s přirozeným světlem. Hmotu jsme tvarovali tak, aby většina místností byla umístěna směrem do ulice a mohli tak být přirozeně osvětleny a případně i větrány.

Odkaz čtvrti

Snažili jsme se vtisknout industriální odkaz dolních Holešovic do moderní budovy školy. Vycházeli jsme z představy, že zatímco na Letnou patří spíše uhlazená budova, Holešovicím sluší naopak architektura syrovější. Odkaz továrních komínů, velkolepě prosklených fasád a obkladů z keramiky jsme přepsali v moderní podobě do high-tech dřevěné budovy s přiznanou konstrukcí, spojovacími prvky a instalacemi.

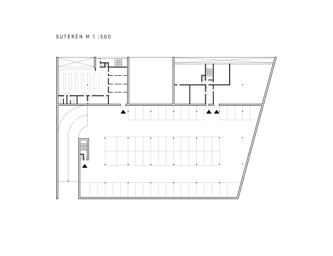
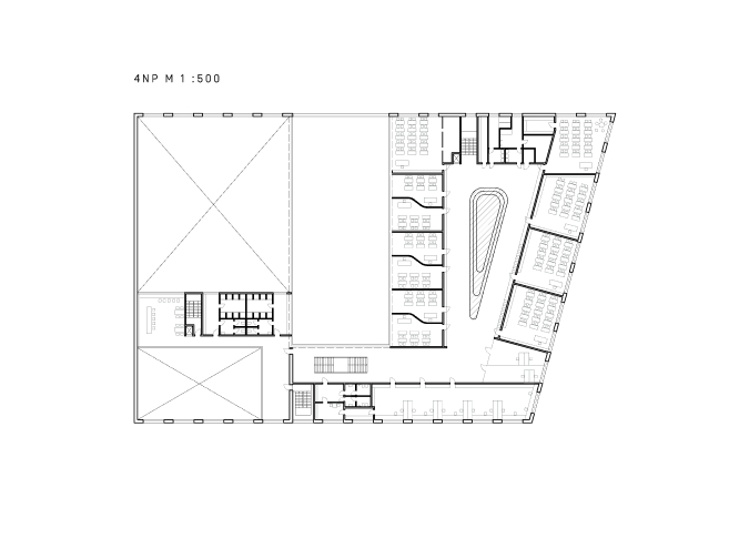
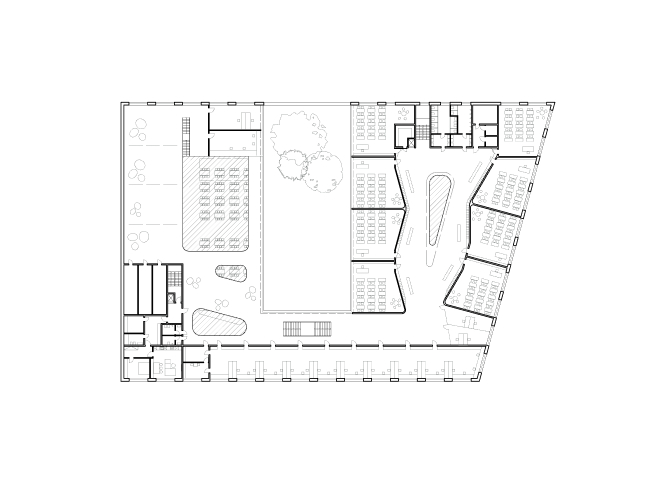
Půdorys ZŠ Holešovice
Půdorys ZŠ Holešovice
Půdorys ZŠ Holešovice
Půdorys ZŠ Holešovice
Půdorys ZŠ Holešovice
Půdorys ZŠ Holešovice
ZŠ Holešovice
Návrh kombinuje beton a dřevo. Dřevěnou konstrukci kromě přízemí a suterénu používáme v maximální možné míře a také jí hojně necháváme přiznanou.

Funkční členění

Za vstupní halou a recepcí, která slouží jako foyer v případě nějaké společenské události, se schéma funkčně rozděluje na dvě větve. Doprava se rozvíjí klasický školní provoz s učebnami, sborovnami a potřebným zázemím. Naopak vlevo jsou provozy jako jídelna a tělocvičny, které ve vymezený čas slouží veřejnosti. Na jídelnu jsme navázali horní galerii, kterou je možné využít jako otevřený přestávkový prostor, ale případně také dělit mobilními příčkami na menší prostory pro zájmovou činnost. Klíčové je také využití střechy, kdy nad křídlem jídelny a tělocvičen umísťujeme hlavní sportoviště + další doplňkové prostory, jako třeba venkovní třídu.

Vizualizace ZŠ Holešovice
38
Ďalší projekt

AB Partizánske

Posuň
ma