29 Stříbrná Skalice

Rodinné a víkendové domy
Architekti
Úžitková plocha
133 m2
Realizácie
2010
Projektanti
Fotograf
Lina Németh
Návrh interiéru
Prodesi - Pavel Horák

Víkendový dům pro vášnivého rybáře vyrostl na břehu řeky na základech původní staré chaty. Na pozemku jsme postavili také zahradní domek, který slouží jako sklad a zastřešené posezení.

Archdaily Badge
/
Dům má jednoduchý, čistý styl venku i uvnitř.

„Po konzultaci s klientem jsme se rozhodli pro stávající dřevostavbu využít původního kamenného soklu, který zbyl po zbourání chaty. Na tomto základu jsme postavili dřevostavbu moderního vzdušného stylu.“

Pavel Horák, Architekt
/
Do přízemí se vchází přes prostorné zádveří, které může být v letních měsících součástí hlavního obytného prostoru
„Přestože bydlíme v Praze, oba s manželkou jsme vyrostli na venkově a do přírody nás to pořád táhne. Chtěli jsme získat zázemí pro častější trávení času za městem - už kvůli našemu malému synovi,“ říká majitel domu.
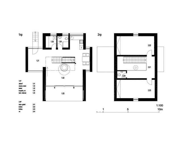
půdorys
situace

Symbióza

U víkendového domu ve Stříbrné Skalici došlo k dokonalé symbióze architektů a investora, který nám po stavbě domu svěřil také kompletní návrh interiéru, kde převažují materiály a prvky nenáročné na logistiku. Kromě několika výjimek (například centrálního krbu) je celý dům zařízený nábytkem od českých firem, nebo vyrobený místním truhlářem na míru. Samotná stavba domu byla založena na kamenné podezdívce, kde vznikla železobetonová deska, která zároveň podpírá konzolované části. Horní stavba je řešena jako sloupková dřevostavba v difúzně otevřené skladbě.

Dům je zařízený nábytkem od českých firem/
31
Ďalší projekt

Kováry

Posuň
ma